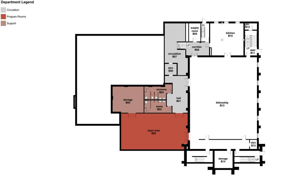
Below you will find the drawings of the proposed FLC building renovation, provided to us by Kueny Architects. The floor plans show you the internal renovations and additions to the building. The renderings of the space (the inside and outside “pictures” and video walkthrough) are meant to give a very general visual depiction of the building, focusing on feel and structure. These drawings are not yet final.
Click each picture for a larger view.






